Վարձ.
Կոմերցիոն - Երևան/Փոքր Կենտրոն/Այգեստանի 10-րդ փողոց
-
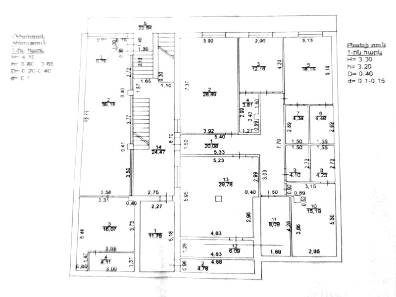
Կոմերցիոն գույքի մակերեսը (ք/մ): 580.00
-
Հողատարածքի մակերեսը (ք/մ): 240.00
-
Շինության տիպը: քարե
-
Վիճակը: կապիտալ վերանորոգում
-
Հարկայնությունը: 2
-
Կոմերցիոն գույքի տեսակը: տարածք
-
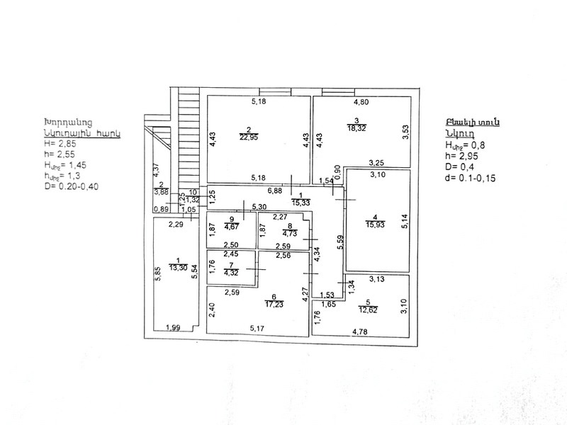
Հարկի լրացուցիչ տվյալներ: 1+ կիսանկուղ
-
Տարածքի տեսակը: ունիվերսալ
-
Առաստաղի բարձրությունը (մ): 2.85
-
Մուտքի տիպը: զրոյական
Նկարներ
Հարմարություններ
- Ջեռուցման համակարգ
Վարձակալության նկարագրություն
1-ին հարկ - 220 քմ - 7 սենյակ, 4 սանհանգույց - 650.000 դրամ.
60քմ. - 1 սենյակ, 1 սանհանգույց.- 200.000 դրամ
կիսանկուղ՝ 120քմ. - 5 սենյակ, 2 սանհանգույց - 350.000 դրամ.
Նմանատիպ անշարժ գույք
Վարձ.
ունիվերսալ
364.00
N/A
Կոմերցիոն
Երևան/Փոքր Կենտրոն/Հյուսիսային պողոտա
Կոդը: 8-N-1-1035
Գինը պայմանագրային













































