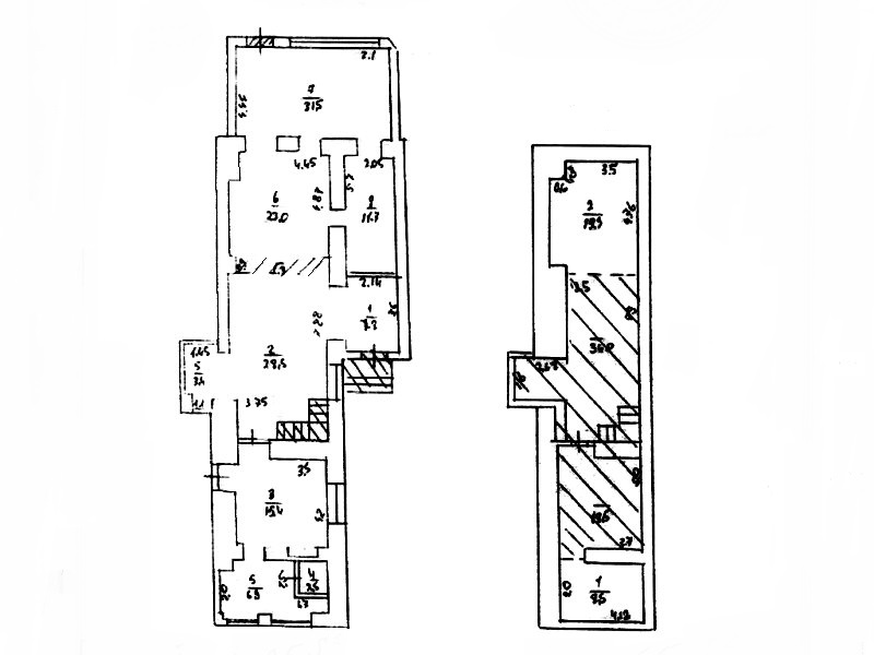
Commercial - Yerevan/Small Center/Tumanyan Street
-
Commercial area (sq/m): 213.50
-
Building Type: Stone
-
Length of land facade (m): 7.00
-
Condition: Major overhaul
-
Floors: 3
-
Commercial property type: Space
-
Additional info of floors: 1+basement
-
Space Type: Universal
-
Ceiling height (m): 3.20
-
Entry type: Zero
Mortgage calculator
Amenities
- First line
- Transport availability
- High people flow
- Developed infrastructure




