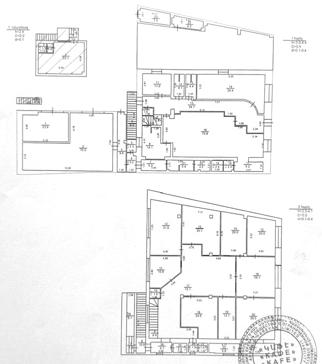
Commercial - Yerevan/Achapnyak/Fuchik street
-
Commercial area (sq/m): 750.00
-
Building Type: Stone
-
Condition: Major overhaul
-
Floors: 2
-
Commercial property type: Separate building
-
Space Type: Office
-
Entry type: Zero
Gallery
Amenities
- Heating system
- Air conditioning
- Parking
- Equipment
- Transport availability
- High people flow
- Developed infrastructure
Rent Description
2 buildings, one of them - office or trade porpose - 600 sq.m., the second - warehouse space - 150 sq.m.

























