Прод.

Код: 1-DH-11
Ереван/Малый Центр/улица Антараин
Продажа
Цена договорная
Продажа 1 кв/м
3300
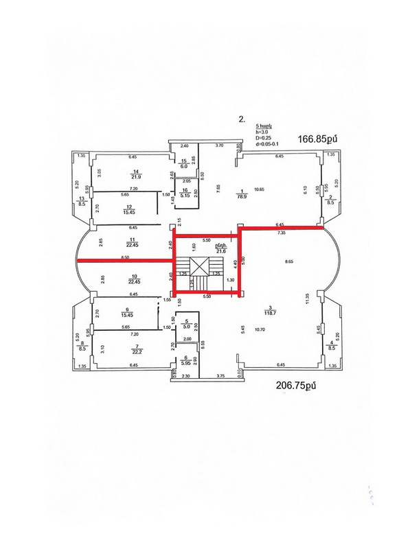
Планы

Квартира - Ереван/Малый Центр/улица Антараин

  • Площадь квартиры (кв/м): 166.85
  • Этаж: 5
  • Количество комнат: 4
  • Этажность: 8
  • Количество спален: 3
  • Количество санузлов: 2
  • Высота потолков (м): 3.00
  • Тип здания: новостройка
  • Состояние: без ремонта

Удобства

  • Обслуживание здания
  • Охрана здания
  • Парковка
  • Лифт
  • Система отопления
  • Система охлаждения
  • Парадный балкон
  • Панорама
  • Бассейн
  • Интернет

Описание продаж

Жилой комплекс “DREAM HOUSE”, класса Премиум, расположен в излюбленном районе ереванцев, на верхнем левом склоне комплекса Каскад. Отсюда открывается отличная панорама на город и Арарат. За 3-4 минуты можно пешком добраться до дома-музея Шарля Азнавура и на эскалаторе спуститься к Каскаду. 
      Жилой комплекс строится по высоким техническим параметрам. Основным материалом конструкции является монолитный железобетон. Здание рассчитано на 9+ балльную сейсмостойкость. Используются исключительно высококачественные строительные материалы. Предусмотрена облицовка из белого травертина. Помещения общего пользования в здании с мраморным покрытием. Геотермальная система отопления и охлаждения марки Mammoth даст Вам возможность значительно сэкономить средства. Здание с высокой тепло и звуко изоляцией. Шести миллиметровые трехслойные окна английского производства фирмы Pilkington изготовлены с использованием профилей SCHUCO.
      По проекту все квартиры имеют парадные балконы. Есть подземная парковка.
 Жилой комплекс  будет оснащен системой безопасности и видеонаблюдения. Просторное фойе, круглосуточная охрана здания и консьерж-сервис создадут для Вас дополнительные удобства и комфорт. Будет установлен лифт производства Schindler.  Озелененный внутренний двор, благоустроенная зона отдыха с бассейном и детская игровая площадка обеспечат отличный досуг Вам и Вашим семьям.
     

Похожая недвижимость

Прод.

5

171.00

3

Квартира
Ереван/Малый Центр/улица Тпагричнери

Код: 1-3-2238

Цена договорная

3

90.00

7

Квартира
Ереван/Малый Центр/улица Демирчяна

Код: 1-3-2071

Цена договорная

3

80.00

3

Квартира
Ереван/Малый Центр/улица Корюна

Код: 3-3-2465

Цена договорная

2

56.00

7

Квартира
Ереван/Малый Центр/проспект Саят-Нова

Код: 3-2-1669

Цена договорная

4

170.00

3

Квартира
Ереван/Малый Центр/улица Чаренца (М.Ц.)

Код: 3-3-2839

Цена договорная

1

40.00

6

Квартира
Ереван/Малый Центр/улица Туманяна

Код: 3-1-1530

Цена договорная