Կոմերցիոն - Երևան/Փոքր Կենտրոն/Մաշտոցի պողոտա
-
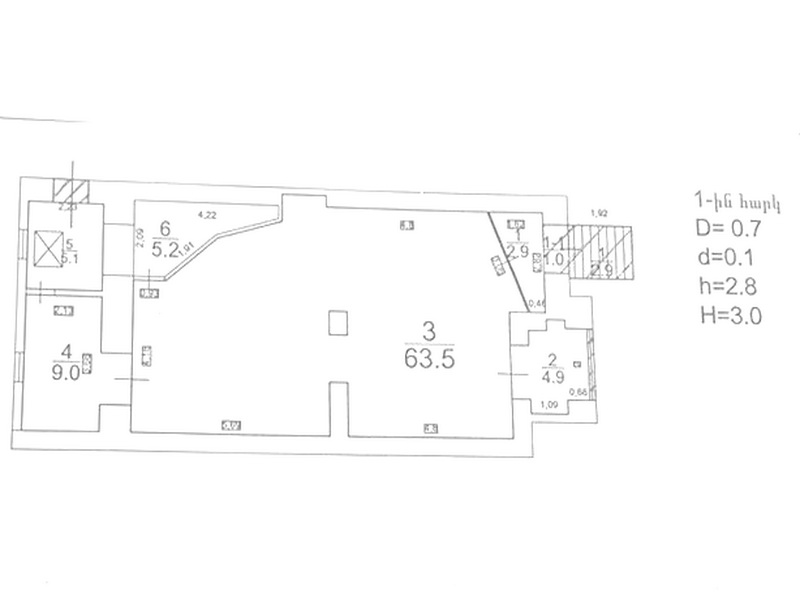
Կոմերցիոն գույքի մակերեսը (ք/մ): 105.00
-
Շինության տիպը: քարե
-
Վիճակը: կապիտալ վերանորոգում
-
Հարկայնությունը: 5
-
Կոմերցիոն գույքի տեսակը: տարածք
-
Հարկի լրացուցիչ տվյալներ: 1ին հարկ+նկուղ
-
Տարածքի տեսակը: ունիվերսալ
-
Մուտքի տիպը: միջնահարկ
Հիփոթեկային հաշվիչ
Նկարներ
Հարմարություններ
- Հովացման համակարգ
- Օդափոխության համակարգ
- Օդորակիչ
- Առաջին գիծ
- Բարձր մարդկային հոսք
- Զարգացած ենթակառուցվածք
Նմանատիպ անշարժ գույք
Վաճ.
Վարձ.
ունիվերսալ
252.00
N/A
Կոմերցիոն
Երևան/Փոքր Կենտրոն/Հանրապետության փողոց
Կոդը: 9-1-1-1518
630,000 / 3,500











