Վարձ.
Կոմերցիոն - Երևան/Փոքր Կենտրոն/Պուշկինի փողոց
-
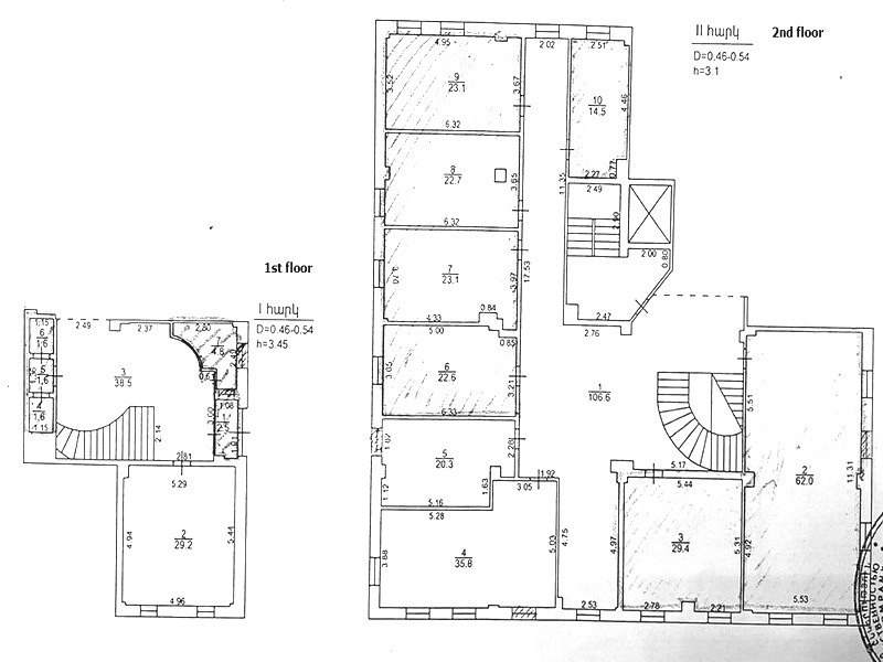
Կոմերցիոն գույքի մակերեսը (ք/մ): 440.00
-
Շինության տիպը: քարե
-
Վիճակը: կապիտալ վերանորոգում
-
Կոմերցիոն գույքի տեսակը: տարածք
-
Տարածքի տեսակը: ունիվերսալ
-
Մուտքի տիպը: զրոյական
Նկարներ
Հարմարություններ
- Ջեռուցման համակարգ
- Օդափոխության համակարգ
- Օդորակիչ
- Առաջին գիծ
- Անվտանգության համակարգ
- Ինտերնետ
- Տրանսպորտի հասանելիություն
- Բարձր մարդկային հոսք
Նմանատիպ անշարժ գույք
Վարձ.
ունիվերսալ
80.00
N/A
Կոմերցիոն
Երևան/Փոքր Կենտրոն/Բաղրամյան պողոտայի 1-ին փակուղի
Կոդը: 8-N-1-984
720




















